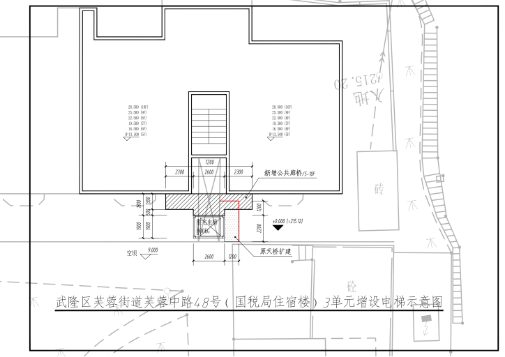
武隆区芙蓉街道芙蓉中路48号2幢3单元,其超过三分之二的楼栋业主于2025年5月向芙蓉街道办事处申请增设电梯,现将该项目申请书、申请人名单、增设电梯示意图进行现场公示,征求利害关系人意见。
公示单位:芙蓉街道办事处
公示时间:2025年6月5日至2025年6月12日
公示地点:区政府门户网站,芙蓉街道芙蓉中路48号2幢3单元楼栋进出口处
反馈方式:
1、若您需对该住宅增设电梯方案发表意见,应在意见反馈期限届满前向芙蓉街道办事处提交书面意见,同时提供身份证明材料、联系方式。书面意见可当面提交,也可通过邮寄方式提交,以邮寄方式提交的,请在信封正面注明“公示反馈意见”字样,提交时间以邮局收件邮戳载明的时间为准。
2、若您认为是该住宅增设电梯方案的利害关系人,在提交书面意见时,还应该提供该方案直接涉及您利益的证明材料。
3、意见反馈期限截止至公示期满后5个工作日内。规定期限未反馈意见的,视为放弃权利。
4、相关利害关系人可自公示期满之日起5个工作日内,向芙蓉街道办事处提出书面听证申请,并提交身份证材料直接涉及您利益的证明材料,逾期未提出的,视为自动放弃听证权利。
通信地址:重庆市武隆区芙蓉街道芙蓉中路51号
联系单位:芙蓉街道办事处(社区事务服务中心)
联系电话:023-77771833
重庆市武隆区人民政府芙蓉街道办事处
2025年6月5日



国务院部门网站
地方政府网站
市政府部门网站
区(县)政府网站
武隆区部门街镇网站
其他网站
版权所有:重庆市武隆区人民政府 主办单位:重庆市武隆区人民政府办公室
网站标识码:5002320015 ICP备案:渝ICP备11006838号-1 渝公网安备 50023202000180号